Etagenwohnung Furtwangen im Schwarzwald Stadtgebiet - 350€ | Angebot:25739709 Etagenwohnung Furtwangen im Schwarzwald Stadtgebiet - 350€ | Angebot:25739709
Etagenwohnung Furtwangen im Schwarzwald Stadtgebiet - 350€ | Angebot:25739709 Etagenwohnung Furtwangen im Schwarzwald Stadtgebiet - 350€ | Angebot:25739709

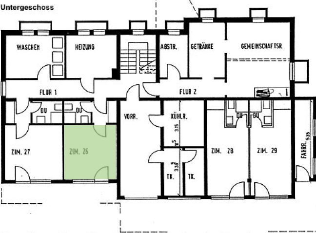
Neu attraktive WG-Zimmer im schönen Schwarzwald (K5)

Informationen zur Immobilie:
Ort
78120 Furtwangen im Schwarzwald
Objektart
Wohnung
Größe
ca.
Energieausweis
Verbrauchsausweis
Energieeffizienzklasse
E
Energieverbrauchkennwert
132 kWh/(m²·a) kWh/(m²·a)
EPass gültig bis
05.06.2035
350 €
(zzgl. Nebenkosten)
Kaltmiete
Beschreibung:
Mehr zum Angebot Neu attraktive WG-Zimmer im schönen Schwarzwald (K5):

Objektbeschreibung
Furtwangen liegt im Naturpark Südschwarzwald im Naturraum Südöstlicher Schwarzwald, rund 25 Kilometer westlich der Kreisstadt Villingen-Schwenningen und rund 27 Kilometer nordöstlich von Freiburg.
Die Stadt liegt zwischen 850 und 1150 m... mehr erfahren
weitere Zimmer Wohnungen
social facebook social youtube social instagram social tiktok

Copyright © 2000 - 2026 | 1A Infosysteme GmbH | Content by: 1A-Anzeigenmarkt.de 17.04.2026